Что такое разобщительный кран
Ниже соединительных гаек крана машиниста усл. № 328.002 на питательной трубе установлен разобщительный кран, а на трубе, идущей к тормозной магистрали, — комбинированный кран усл. №114.
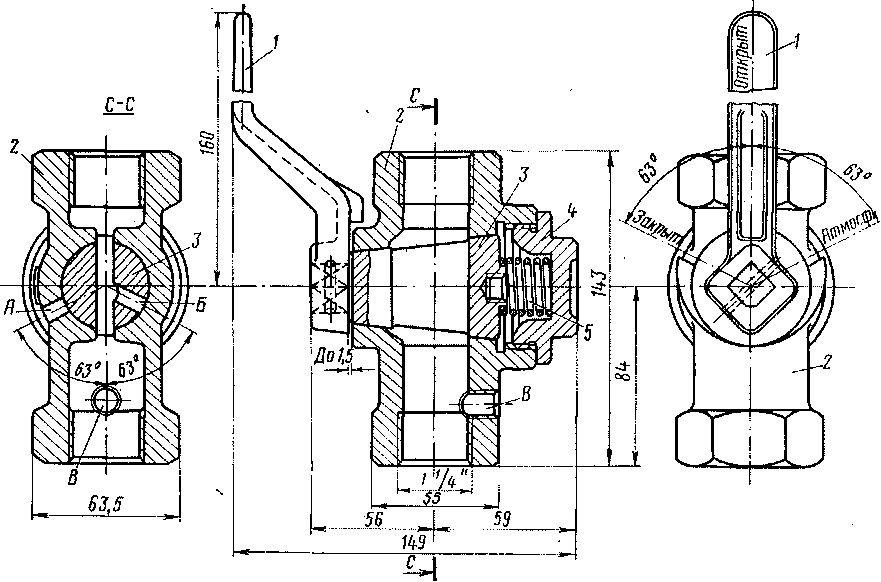
Разобщительный кран 972 (см. рис. 241) служит для отсоединения питательной трубы от крана машиниста в недействующей
Рис. 250. Комбинированный кран № 114
кабине при одиночной тяге и в обеих кабинах второго электровоза при двойной тяге.
Комбинированный кран 966 служит для экстренного торможения, перекрывает трубопровод, как и кран двойной тяги. Этот кран имеет три положения (рис. 250). В положении ручки 1 крана вдоль трубы пробка 3 своим каналом сообщает кран машиниста с тормозной магистралью. При повороте ручки крана влево кран машиниста отсоединяется от магистрали. При повороте ручки вправо магистраль изолируется от крана машиниста и сообщается с атмосферой широким каналом через отверстие Б в пробке 3 и боковое отверстие А в корпусе 2. В последнем положении крана быстро снижается давление в тормозной магистрали. Пробка 3 прижимается к своему седлу пружиной 5, удерживаемой крышкой 4.
Конструкция разобщительного крана отличается от комбинированного крана отсутствием отверстия А в корпусе и’отверстия Б в пробке, а также положением фиксации рукоятки при закрытом положении крана.
Отверстие В в корпусе крана с резьбой ‘Д» служит для присоединения трубки, идущей к манометру. На электровозах 34Е оно заглушено пробкой.
Назначение и типы разобщительных кранов
Служат для включения и выключения пневматических магистралей, систем и приборов и устанавливаются на трубопроводах, идущих к ним. При всем многообразии все разобщительные краны делятся на три группы:

Трехходовые краны отличаются от двухходовых наличием в пробке третьего хода, а также третьего штуцера на корпусе, в который вворачивается заглушка с атмосферным отверстием диаметром 3 мм или 5 мм. Например, концевой кран НМ, который перекрывает трубопровод, идущий под вагоном к автосцепке. Перед тем, как расцепить вагоны, краны на них закрывают. Но внутри автосцепки остается давление от 6 – 8 атмосфер. При расцепе будет хлопок воздуха и из автосцепки могут вылететь резиновые вкладыши. В этих случаях ставят трехходовой кран. После его закрытия, воздух запертый в автосцепке выходит в атмосферное отверстие и, соответственно, хлопка не будет.


Четырехходовой кран используется только в пневмоприводе электроконтактной коробки (ЭКК).
Пневмопривод ЭКК
Пневмопривод электроконтактной коробки (ЭКК) предназначен для соединения низковольтных электрических цепей вагонов после их сцепления.
Размещается на автосцепках и питается сжатым воздухом из НМ.
Пневмопривод состоит из:
— двухходового разобщительного крана К1, 2. четырехходового крана управления пневмоцилиндром К32, К33.
— двух резинотканевых трубок.
— пневмоцилиндра с поршнем и штоком.
Назначение делителя давления, РВТБ
Делители давления.
«РВТБ». Резервный вентиль тормоза безопасности:
Резервный вентиль тормоза безопасности предназначен для разрядки тормозной магистрали по командам устройств АЛС-АРС (БАРС). РВТБ включается в работу при открытом кране К-9 (РВТБ).
Датчик давления Д7
Дата добавления: 2019-02-22 ; просмотров: 1565 ; Мы поможем в написании вашей работы!
Разобщительные краны. Назначение, типы, устройства, работа.

Устройство разобщительного крана
Корпус со штуцерами подвода трубопроводов. Коническая латунная пробка, на квадратный хвостовик которой надевается ручка или штанга. Пробка имеет сквозные каналы для прохода воздуха. Резьбовая крышка с упорной пружиной. Роль последней сводится к плотному прижатию внешнего конуса пробки к внутреннему конусу корпуса с целью снижения до минимума негерметичности прилегающих поверхностей.
Краны двойной тяги, один из которых является комбинированным для напорной магистрали.
— Краны, установленные перед пневмоприводами ЭКК.
— Все остальные разобщительные краны, размещенные перед пневматическими приборами, отличаются друг от друга только диаметром резьбы штуцеров 1/2 или 3/4 дюйма.
Трехходовые краны отличаются от двухходовых наличием в пробке третьего хода, а также третьего штуцера на корпусе, в который вворачивается заглушка с атмосферным отверстием диаметром 3 мм или 5 мм. Трехходовых кранов на вагоне несколько:
— Концевые краны напорной и тормозной магистрали со стороны каждой автосцепки — по 2 штуки;
— Кран К31 отключение БУФТ;
— Кран К29 подключение КРМ к НМ;
Работа разобщительного крана
Все разобщительные краны имеют два положения – «открыт» и «закрыт». Управление краном осуществляется при помощи ручки, надетой на квадратный хвостовик пробки. Кран открыт, если ручка крана направлена вдоль трубопровода. Кран закрыт, если ручка направлена поперек трубопровода. При перекрытии двухходового крана сообщавшиеся между собой каналы прохождения воздуха отсекаются друг от друга, а при перекрытии трехходового крана один из каналов сообщается с атмосферой.

Работа двухходового разобщительного крана
Б) При разрыве трубопровода напорной или тормозной магистрали на одном из вагонов состава для продолжения движения необходимо этот вагон отделить («высечь») от остальных вагонов состава. Для этого необходимо перекрыть концевые краны на автосцепках вагонов, смежных с автосцепками неисправного вагона. Так, если разрыв произошел на пятом вагоне по ходу движения, то краны следует перекрыть в хвостовой части четвертого вагона и в головной части шестого. Если, по ошибке, перекрыть концевые краны на автосцепках неисправного вагона, весь воздух из соответствующей воздушной магистрали со стороны головной и хвостовой части состава выйдет в атмосферу через эти перекрытые краны, что, в свою очередь, затруднит выход из подобной неисправности.

В) В случае разрыва резинотканевого рукава, ведущего к пневмоклапанам напорной или тормозной магистрали на одной из автосцепок, для прекращения утечки воздуха следует перекрыть концевые краны на смежных автосцепках двух сцепленных вагонов, и далее действовать согласно инструкции по выходу из случаев неисправностей на составе.
Разобщительный кран. Схема и принцип действия
Главное назначение разобщительного крана — управление подачей воздуха из пневматической системы трактора в пневматическую систему прицепа и облегчения монтажа соединительных головок этих систем.
Рукоятка устанавливается в фиксируемые положения: «закрыто», перпендикулярно оси крана, и «открыто», вдоль оси крана.
Устройство закрывается поворотом рукоятки на 90° по часовой стрелке, открывается — поворотом против часовой стрелки.
Рабочий процесс
На рукоятке неподвижно закреплен толкатель. В отверстие толкателя вставлен штифт, который при повороте рукоятки скользит по спиральной кривой крышки и перемещает толкатель вдоль оси.
1 — рукоятка; 2 — штифт; 3 — крышка; 4 — диафрагма; 5 — корпус; 6 — клапан; 7 —пробка; 8 и 10 — пружины; 9 — шток; 11 — толкатель.
Другой конец штока упирается в торец резинового клапана; пружина также сжимается, и клапан открывается.
Сжатый воздух из полости, А поступает в полость В через соединительную головку в пневмосистему прицепа.
При обратном повороте рукоятки толкатель освобождает шток, и под действием пружины шток освобождает клапан. Клапан закрывается, и поступление сжатого воздуха из полости, А в полость В прекращается.
После закрытия клапана шток отходит от него, и сжатый воздух из пневмосистемы прицепа через полость В, осевое и радиальное сверления в штоке, выходит в полость Б и далее через сверление в крышке в атмосферу.
При этом тормозятся колеса прицепа и освобождается от сжатого воздуха соединительная пневмолиния, что позволяет беспрепятственно, безопасно разъединять и соединять трактор и прицеп.
Диафрагма, установленная между корпусом и крышкой, препятствует выходу сжатого воздуха из полостей, А и В по зазору между корпусом и штоком в атмосферу при открытом кране.
КРАН РАЗОБЩИТЕЛЬНЫЙ
запорный кран, устанавливаемый на ответвлении магистральной трубы перед воздухораспределителем и служащий для включения или выключения тормоза. На квадрат пробки насаживается ручка, имеющая два положения: вдоль трубы, соответствующее включению воздухораспределителя, и поперек трубы, соответствующее выключению.
Смотреть что такое «КРАН РАЗОБЩИТЕЛЬНЫЙ» в других словарях:
Тормозная система — Эту статью следует викифицировать. Пожалуйста, оформите её согласно правилам оформления статей. Тормозная система предназначена для уменьшения скорости движения и/или остановки транспортного средства или механизма. Она также позволяет удерживать … Википедия
Словарь метротерминов — Эта страница глоссарий. Приведены основные понятия, термины и аббревиатуры, встречающиеся в литературе о метрополитене и железной дороге. Подавляющее большинство сокращений пришли в метрополитен с железной дороги напрямую или образованы по… … Википедия
Железнодорожный тормоз — устройство, позволяющее создать искусственное сопротивление движению с целью регулирования скорости или полной остановки поезда. Содержание 1 Виды тормозов 1.1 Пневматический тормоз … Википедия
СУДОВАЯ ГИГИЕНА — СУДОВАЯ ГИГИЕНА, являясь частью общей гигиены и имея с последней одинаковые задачи и методику, рассматривает человека в особых условиях пребывания его на судне, кратковременного для пассажиров и длительного для экипажа судна. Основными разделами… … Большая медицинская энциклопедия



